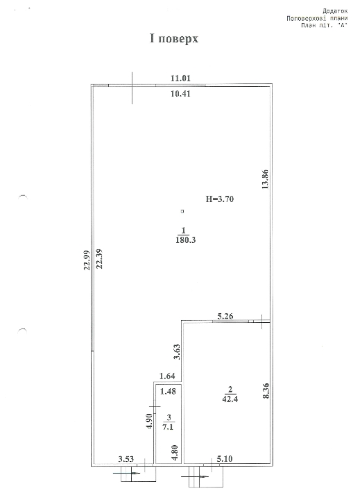
Нежитлова будівля, загальною площею 229,8 кв.м., що розташована за адресою: м. Одеса, вул. Кримська, буд. 71А

Стан аукціона:
реєстрація учасників
Номер лоту:
587868
Дата проведення аукціону:
21-11-2025 09:00
Дата закінчення торгів:
21-11-2025 18:00
Дата закінчення подання заявок:
21-11-2025 08:00
Стартова ціна:
6 672 921.00 грн.
Гарантійний внесок:
333 646.05 грн.
Крок аукціону:
66 729.21 грн.
Область:
Одеська обл.
Місцезнаходження майна:
м. Одеса, вул. Кримська, буд. 71А
Дата публікації:
22-10-2025 16:32

Додатково:

Нежитлова будівля, загальною площею 229,8 кв.м., що в цілому складається з: основна - 180,3 кв.м., основна - 42,4 кв.м., основна - 7,1 кв.м.. Висота приміщень - 3,7 м. Будівлю обладнано електропостачанням та освітленням, каналізацією та водовідведенням, водопостачанням, вентиляцією, опаленням (місцеве).

Місцезнаходження: Одеська область, місто Одеса, вулиця Кримська, будинок 71А.

Право власності на підставі акту приймання-передачі, серія та номер: НТС127506, виданий 28.01.2025, видавник: приватний нотаріус.

Право користування на підставі договору найму будівлі або іншої капітальної споруди (їх окремої частини), серія та номер: №1086, виданий 05.05.2025, видавник: Лічман І.М., приватний нотаріус Одеського міського нотаріального округу, Договір оренди нежитлової будівлі. Дата закінчення дії: 05.05.2035.

Реєстраційний номер лота
587868
Категорія
Будівлі
Відомості про обтяження майна:

Арешт нерухомого майна №61335520, рішення державного виконавця, приватного виконавця щодо обтяження речових прав на нерухоме майно, серія та номер: 78999015, видавник: Притуляк В.М

  • Учасник 1 - 22-10-2025 17:13 (очікує підтвердження)
  • Учасник 2 - 23-10-2025 11:20 (очікує підтвердження)
Порядок ознайомлення з майном:

ознайомлення у зберігача

Сирота Наталя Іванівна, 096 500 95 08


Порядок сплати внеску:
Сплата гарантійного внеску для участі в електронних торгах здійснюється на рахунок Організатора за реквізитами, які, зокрема, вказані в квитанції, що автоматично формуються Системою в особистому кабінеті учасника, при подачі заявки на участь у торгах по певному лоту. Підтвердження щодо надходження суми гарантійного внеску на рахунок Організатора від обслуговуючого банку повинно надійти Організатору не пізніше ніж за одну годину до початку торгів.
Порядок сплати за майно:
Розрахунок за придбане на електронних торгах майно здійснюється переможцем електронних торгів за реквізитами, які вказані в Протоколі електронних торгів, що автоматично формується системою після закінчення електронних торгів.
Порядок оформлення участі у торгах:
Для участі в електронних торгах, необхідно:
1.Зареєструватися в системі «СЕТАМ»
2. Подати заявку на участь в електронних торгах з особистого кабінету учасника торгів
3. Сплатити гарантійний внесок у розмірі 5% від стартової ціни лота на рахунок Організатора торгів.
Повний текст правил проведення торгів доступний за посиланням
Організатор торгів:
Державне підприємство «СЕТАМ», контактний телефон «0-800-335-754», електронна адреса «service@setam.net.ua»
Відділення продавця:
Притуляк Валерій Миколайович (ПВ), виконавчий округ - Одеська обл., номер посвідчення 0043